Residential Structural Design

Single-Family Residence Structural Analysis

Role

Structural Engineer

Scope

Analysis & Concrete Design

Type

Residential

Tools

ETABS, Revit Structure

Verified by Professional Engineer in Honduras

Project Overview

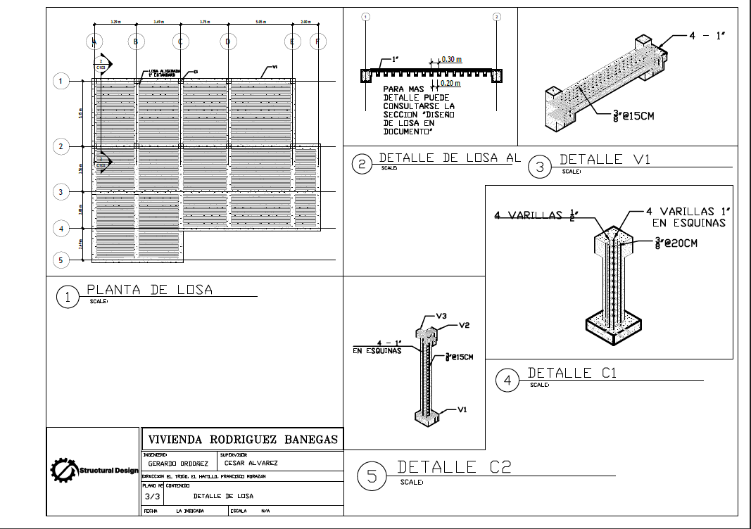
Complete structural analysis and reinforced concrete design for a single-family residence. This freelance project involved translating architectural plans into a safe and efficient structural system.

Key Challenges & Solutions

Seismic Analysis: Performed analytical modeling using ETABS to calculate loads and stresses, validating seismic performance.

Detailing: Designed reinforced concrete elements and translated analytical results into clear construction drawings and 3D structural models.

Project Resources

Access the calculation memory and structural plans.

Download Calculation Memory (PDF) Download Structural Plans (PDF)

Gallery

More visualization to act as evidence of this work coming soon...